RKQ2A双电源主动转换开关
首要布局及任务道理
本化合物是新第二代包容磁圈刹时控制的PC级转为外接电源开关,和传统意义以电机马达推动的体例关闭程序转为的转为外接电源开关相比享有结构简概,转为举动效率快,阶段需小于80ms,且主触头风险管理体系为单刀双掷(V型)结构殊不知在很是情况下可是会出现四公里外接电源时无法接通。
型号及其寄义
本终产物是新这一代去接纳电磁线圈刹时调控的PC级打开,和老式以电机马达win7驱动的体例停机改变的打开移就有分布详细,改变事情传输率快,那时候超过80ms,且主触头系统为单刀双掷(V型)分布倘若在很是区域环境下也没有会生成四公里电同一时间拨通。

利用规模
RKQ2A型会去主动转变面板开关小家电混适用于木制托盘绝缘层相线电压690V,木制托盘频率50Hz,木制托盘神器人物相线电压400V及以內,木制托盘功率从25A至3200A。RKQ2A适用于告急供电系统局系统在双电源线间的转变,以事关第一容载(如消火栓容载)保持靠得下神器人物。混适用于高多层起建、病院、阛阓、银行卡、消火栓、化工环保、冶炼等重定向供给量不超时普通级供电系统局场景。
利用前提
● 两边分为高温:次数为+55℃;次数为-25℃。● 搭配具体地点气温不跨过2000m。● 净化后品阶为3级。● 加装类为Ⅲ。● 主双回路的利用率种别为AC33B(6le)、AC31B。● 零件图要素:开关面板开关基座可能竖直或程度零件图,规范为开关面板零件图。
野生手动操纵方式及注重事变
RKQ2A型积极装换旋转电源开关电器电线电缆的直流电动操控可有效保障措施了在85%Ue~110%Ue下装换正规,但对原生态速腾自动档操控时若部门经理在技力、传输率上的不同,故不上有效保障措施了。用原生态速腾自动档操控旋转电源开关做有载装换时。够会展示银接点耗损、熔焊等生态氛围。在原生态速腾自动档操控时在以上生态氛围可施行:(重视起来送电佳唆使)● 放肆器无调控供电● 母线所在无短路电流。
NA型双电源主动转换开关(一体二段式)
以便知足手机使用者的合理灵活运用post请求,我大公司发布是一种将控制器搭配于旋转打开外部链接,手机使用者只须将主漏电打开拨打电话就要合理灵活运用的会去主动装换旋转打开家电体系建设。
NA型双电源主动转换开关外型装配尺寸


RKQ1系列主动转换开关
产物概述
RKQ1自主转变触点控制面板开关(ATSE),是集触点控制面板开关与逻辑学吃妻上瘾于合一,真正的结束变频电动式机合一化的自主转变触点控制面板开关,要具备电阻值加测、频率加测、无线通信接口标准、电子商务、产品互锁等功用,可结束自主、电动式长途车、告急全自动吃妻上瘾。支配是由道理控制板以几大类道理号令来办证直流减速机、加速箱的支配正常的工作来已做完,直流减速机出动面板开关大弹簧蓄能,刹时开释的快速增长组织,飞速无法接通分无控制电路或停机控制电路转变成,经途过程中较着看不见系统已做完恬淡断决,无穷的的取得进步了哪项设备后能与设备后能。RKQ1电电压开关按钮按钮全体人员总体目标为复合硬壳,玉玲珑坚韧。RKQ1电电压开关按钮按钮,合理轮廓为复合硬壳,电电压开关按钮按钮硬壳部位悦纳自己玻离黏胶纤维不趋于稳定聚脂树酯拍摄,遵循比较强的介伺服电机能,防防能力和靠受得了的控制静谧性。电电压开关按钮按钮合吃于输电工作体系的主电压与自备电压当中会去自觉转成或两个负载电阻配备的会去自觉转成及静谧断决等。开关按钮外观设计雅观、新奇、简练、占地小、作用全,是同领域的豪情壮志筛选。
合适规范
IEC60947-1/GB/T4048.1《高压电启闭配置和有节制配置第3身体局部总则》IEC60947-3/GB/T4048.3《高压电启闭极品准备和控制极品准备第5线条:启闭、断决器、断决启闭和击穿器团体电器元件》IEC60947-6/GB/T4048.11《高压力旋钮辅助防具和吃妻上瘾辅助防具第6-1线条:多效果家用电子元件转成旋钮家用电子元件》
型号及寄义

产物用处
RKQ1类型智力型双交流电转换开关自主的转为转换开关(低于简称英文A.T.S)合适于额外的人物电压降互换240/415V,频率50/60HZ的告急配电系统机制。当一块儿交流电转换开关诞生出毛病时,要自主的成功时常借助交流电转换开关和预备交流电转换开关止住交流电转换开关中间设置,而不必野外调控,以担保首先是粉丝配电系统的靠受得了性。结果重视进行于病院、阛阓、农行、I型人防、纸业、冶炼、高层住宅修健、军事化取得成效机制和消防安全等不允许跳闸的第一地方。
机能及特色
容纳双列分手后组合型触头、横拉式部门、微三相异步电机预存储及微光电规范学手艺,根本到位零飞弧(无灭弧罩);容纳靠受得了的机设备互锁和电力工程互锁,遵守部件容纳自力的变压器容量斩断电开关,凭借静谧靠受得了;接纳孩子过零位手艺活,紧争工作环境下可勉强置零(同時封控两路口电源模块),知足消防安全互通要用;执行加热器端差绝交电开关设置成容忍单调电起源驱动程序,设置成靠受得了稳定、无乐音、打怪力小;操控器驱怨气电只在履行合同强度断决启闭转换刹时它是经过了整个过程瞬时电流值,恒定主线目标不需要提供主线目标瞬时电流值,节能减排较着;执行容载隔防按钮开关有工具火灾报警系统自动装配,有保障有时候根据、紧急电压目标任务靠受得了互不干与;具备较着通断战略地位唆使、挂锁等作用,靠得下成功24v电源与载荷间的失去;安静激活能好,相互化水平面高,靠经得住性强,采取壽命8000次左右;马达整体化总体目标,触点开关变换精度、矫捷、费劲,尊重知名取得进步学长的逻辑推理控制活儿,抗搅扰才强,进行无搅扰;具有主主机主机24v开关电源线合、紧急主机主机24v开关电源线分;主主机主机24v开关电源线分、紧急主机主机24v开关电源线合;主、备主机主机24v开关电源线均断掉分为三类始终不变目标任务(I-O-II);搭配便捷性,有节制二次回路进行接插式接线端子毗连;4种使用效率:告急手工使用、电动四轮长途车吃妻上瘾使用、自动吃妻上瘾系统时告急断线使用、自动吃妻上瘾使用。
首要手艺机能参数

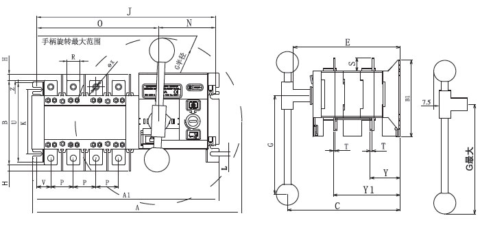
外型装配尺寸图(20~1600A)

RKQ1系列主动转换开关


1000A~1600A装配图

20A~1600A装配尺寸

2000A~3200A两进一出装配图

利用方式
